设为首页
加入收藏
邮件联系
首页
公司简介
新闻资讯
产品展示
工程案例
客户留言
联系我们
泳池设备
水泵系列
砂缸系列
一体化过滤设备
水质监控及投药系列
吸污清洁装置
水下灯系列
泳池配件
桑拿水疗设备
水景喷泉设备
雨水回收利用设备
人工湖设备
户外设备
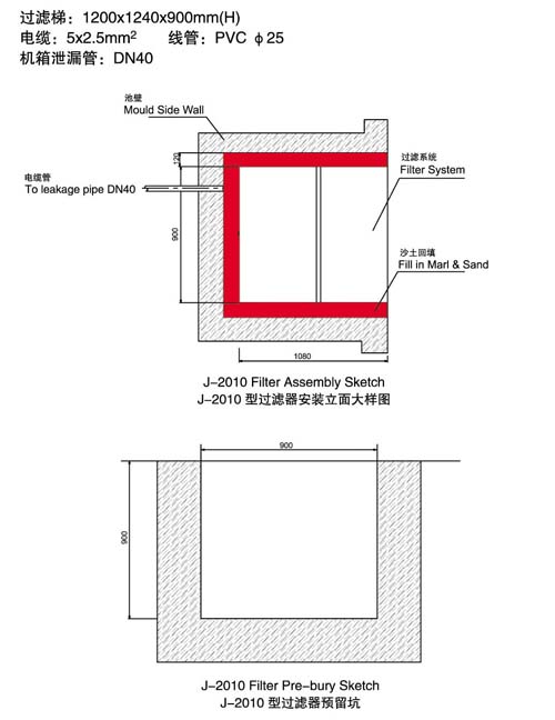
“亚士普”J-2010过滤器
产品描述:
首页
公司简介
新闻资讯
产品展示
工程案例
客户留言
联系我们
版权所有:深圳市永泰宝实业有限公司 粤B123456 号
地址:深圳市龙岗区南湾街道平吉大道1号建昇大厦A座807室
电话:0755-84187048 84701946 传真:0755-84187069
粤ICP备12035943号